top of page

Ed. Norberto Link
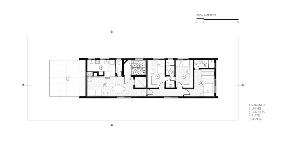
O edifício está localizado em um bairro residencial da cidade de Guaíba. O desafio do projeto foi acomodar a edificação com seus apartamentos e 2 vagas por unidades em um terreno com medidas limitadas. A solução foi projetar os seus apartamentos de 3 dormitórios ocupando todo o pavimento garantindo iluminação e ventilação em todo imóvel. O térreo possui portaria e um jardim junto às vagas de estacionamento, estando a área de convivência no rooftop com vista para a cidade.


Ficha Técnica
Guaíba, RS
974m²
2015
Equipe: Eduardo Almeida | Priscila Berselli |
Vinicius Turra | Bárbara Armange
Clique para ampliar
bottom of page



















